Матчасть. Стрелковое оружие.

Тема у розділі 'Стрілецька зброя та її фрагменти', створена користувачем GINDENBURG, 21 лют 2012.

  1. Байрактар

    Байрактар Hauptmann

    Рейтинг:
    4
    Відгуків:
    116
    Лоти
      на продажу:
    6
      продані:
    215
    Повідомлення:
    4.659
    Адреса:
    уважаемые камрады, помогите с чертежом по стволику Ruby 7,65мм, все в сети перерыл, ничего не нашел:confused:
     

    Images:

    IMG_2331-vi.jpg
    ruby_czesci.jpg
  2. Цікаві лоти

    1. Магазин б/у, TANFOGLIO Giuseppe mod. Gt27, Kal. 25auto( 6.35mm) Прекрасний робочий стан, без реставр...
      2900 грн.
    2. Продам экспортный затвор ПМ (IZH-70) с регулированным целиком для создания “СХП” или “ММГ” без вмеша...
      6200 грн.
    3. (в наявності 2 шт.)
      Оригінальний магазин для пістолета Beretta M9/M92FS калібру 9 мм, вироблений за контрактами з урядом...
      2300 грн.
    4. Б/в, але функціонально як нова.
      1490 грн.
    5. Кейс спортивного револьверу ТОЗ-49, комплектний з ключем, з паспортом та засобами для обслуговування...
      6000 грн.
  3. Papahen

    Papahen Feldwebel

    Рейтинг:
    2
    Відгуків:
    4
    Лоти
      на продажу:
    0
      продані:
    5
    Повідомлення:
    466
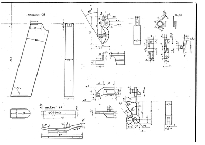
    Чертежи газовой беретты ранняя модель. Подходят так-же и к Valtro Combat 777179.jpg 777181.jpg 777183.jpg 777187.jpg 777189.jpg 777185.jpg
     
    Gasser та tankis подобається це.
  4. goro

    goro Stabsfeldwebel

    Рейтинг:
    3
    Відгуків:
    20
    Лоти
      на продажу:
    0
      продані:
    31
    Повідомлення:
    2.044
    Адреса:
    Украина
    К сожалению в таком разрешении толку от них немного
     
  5. Papahen

    Papahen Feldwebel

    Рейтинг:
    2
    Відгуків:
    4
    Лоти
      на продажу:
    0
      продані:
    5
    Повідомлення:
    466
    могу скинуть в личку. в формате tif не возможно загрузить в тему
     
  6. goro

    goro Stabsfeldwebel

    Рейтинг:
    3
    Відгуків:
    20
    Лоти
      на продажу:
    0
      продані:
    31
    Повідомлення:
    2.044
    Адреса:
    Украина
    Скиньте пожалуйста. Если не сложно
     
  7. goro

    goro Stabsfeldwebel

    Рейтинг:
    3
    Відгуків:
    20
    Лоти
      на продажу:
    0
      продані:
    31
    Повідомлення:
    2.044
    Адреса:
    Украина
    Papahen подобається це.
  8. VI Reich

    VI Reich Oberfeldwebel

    Рейтинг:
    2
    Відгуків:
    12
    Лоти
      на продажу:
    0
      продані:
    22
    Повідомлення:
    566
    Адреса:
    UA Reich
    Нужны чертежи Рейхсревольвера 1879г. в. Ввесь интернет облазил, а ничего толком сам найти не могу по нему! Прошу помощи! С ув
     
  9. A10A

    A10A General-leutnant

    Повідомлення:
    23.839
    Адреса:
    Київ, Україна
    ...это видели ? ну хоть что-то...
    http://weaponland.ru/load/revolver_reichsrevolver_m_1879/147-1-0-885
    http://otvaga.net/revolver-reichsrevolver-m-1879-kal106-mm-s-koburoj
     

    Images:

    Reichsrevolver_1879-1.jpg
    Reichsrevolver_1883-4.jpg
    nimash1 подобається це.
  10. VI Reich

    VI Reich Oberfeldwebel

    Рейтинг:
    2
    Відгуків:
    12
    Лоти
      на продажу:
    0
      продані:
    22
    Повідомлення:
    566
    Адреса:
    UA Reich
  11. MP-40

    MP-40 Oberfeldwebel

    Рейтинг:
    -2
    Відгуків:
    8
    Лоти
      на продажу:
    0
      продані:
    18
    Повідомлення:
    1.843
    Адреса:
    Чорний ліс
    Может у кого еть инфа по затвору от манлихера Разборка и модели !!
     
  12. andy1972

    andy1972 Leutnant

    Рейтинг:
    3
    Відгуків:
    25
    Лоти
      на продажу:
    0
      продані:
    35
    Повідомлення:
    1.120
    Адреса:
    Украина
    Толковый, интересный и нечасто встречающийся спецвыпуск журнала "Оружие" за сентябрь 2002 "Всё о Нагане" и книга "Боевое стрелковое наставление: от Нагана до АПС" А. Потапова" - одна из моих любимых книг, описывающих боевые пистолеты, находившихся на вооружении армии и спецслужб как в дореволюционной России, так и в СССР.

    Обе книги здесь http://fex.net/#545430512274

    1.JPG
    NAP.jpg
     
    LIKOS, Криос та АЛЕКСЕЕВ подобається це.
  13. zonder41

    zonder41 Schütze

    Рейтинг:
    1
    Відгуків:
    1
    Лоти
      на продажу:
    0
      продані:
    1
    Повідомлення:
    7
    Адреса:
    Украина
    Уважаемые камрады, подскажите пожалуйста какая резьба на стволе где малая гайка МР38/40. 13/1 правая или левая. С ув.
     
  14. Криос

    Криос Stabsgefreiter

    Повідомлення:
    161
    Адреса:
    Харьков
    goro подобається це.
  15. GINDENBURG

    GINDENBURG General-major

    Рейтинг:
    4
    Відгуків:
    82
    Лоти
      на продажу:
    2
      продані:
    137
    Повідомлення:
    9.194
    Адреса:
    Украина
    Gasser, Криос та A10A подобається це.
  16. Alexasuper

    Alexasuper Schütze

    Повідомлення:
    1
    Адреса:
    Запорожье
    Помогите оценить
     

    Images:

    507849600_1_644x461_dlya-kollektsiippsh-41-sgnil-derevyannyy-priklad-energodar.jpg
    507849600_2_644x461_dlya-kollektsiippsh-41-sgnil-derevyannyy-priklad-fotografii.jpg
    507849600_3_644x461_dlya-kollektsiippsh-41-sgnil-derevyannyy-priklad-kollektsionirovanie.jpg
    507849600_4_644x461_dlya-kollektsiippsh-41-sgnil-derevyannyy-priklad-hobbi-otdyh-i-sport.jpg
  17. Медный

    Медный Oberst

    Рейтинг:
    1
    Лоти
      на продажу:
    0
      продані:
    3
    Повідомлення:
    3.977
    Адреса:
    Земля
    Вам надо в раздел "Сколько стоит?"С ув.
     
  18. Сергей537

    Сергей537 Oberschütze

    Повідомлення:
    132
    Адреса:
    харьков
    Ув. камрады подскажите как снимается стволик на к 96.
     
  19. A10A

    A10A General-leutnant

    Повідомлення:
    23.839
    Адреса:
    Київ, Україна
    ...на Маузере к 96 подвИжная часть монолитная
     

    Images:

    Anatomy-Mauser-C96.jpg
    VitalicBondarchuk1974 подобається це.
  20. Камча

    Камча Oberstleutnant

    Повідомлення:
    3.033
    Адреса:
    Україна, м.Київ
  21. Камча

    Камча Oberstleutnant

    Повідомлення:
    3.033
    Адреса:
    Україна, м.Київ
  22. Камча

    Камча Oberstleutnant

    Повідомлення:
    3.033
    Адреса:
    Україна, м.Київ
  23. Papahen

    Papahen Feldwebel

    Рейтинг:
    2
    Відгуків:
    4
    Лоти
      на продажу:
    0
      продані:
    5
    Повідомлення:
    466
    если вы о стволе со ствольной коробкой то как правило монолитная. но встречаются Маузеры (мм со стволами от Люгера P08. Вот те сборные
     
  24. Камча

    Камча Oberstleutnant

    Повідомлення:
    3.033
    Адреса:
    Україна, м.Київ
    Криос подобається це.
  25. Grand

    Grand Oberleutnant

    Повідомлення:
    4.175
    Адреса:
    Украина
  26. Scinner

    Scinner Gefreiter

    Повідомлення:
    42
    Адреса:
    Уездный город N
    Приветствую. Возможно подскажите где посмотреть инструкцию по разбору МАВ-38, конструктор Тулио Марэнгони. Не могу кожух со ствола снять. С ув.