Бункер в г.Конотоп

Тема у розділі 'Фортифікація', створена користувачем leon92, 3 жов 2017.

  1. leon92

    leon92 Stabsgefreiter

    Рейтинг:
    2
    Відгуків:
    3
    Лоти
      на продажу:
    0
      продані:
    8
    Повідомлення:
    147
    Адреса:
    Форпост Гетьманщини
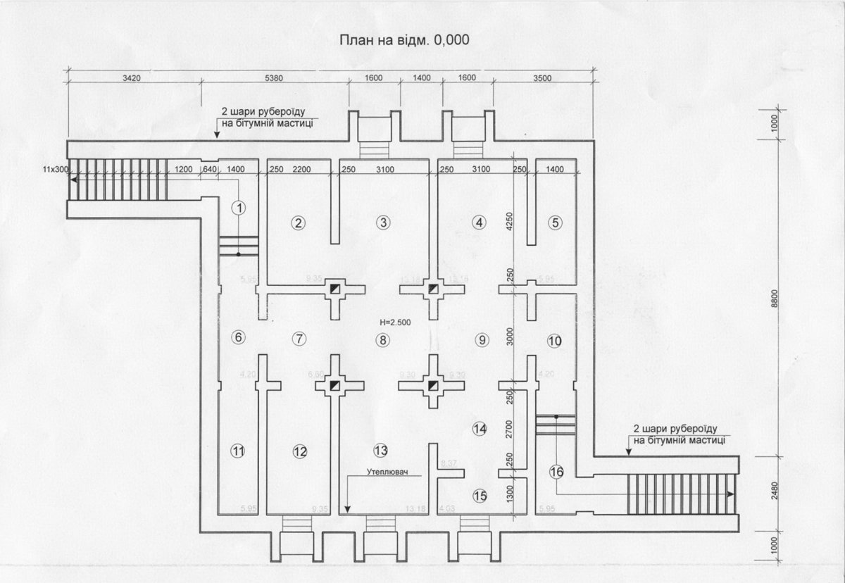
    День добрый, камрады, хотел у Вас уточнить за бункер, который находится в г.Конотоп на территории музея авиации. По моим предположениям это бункер немецкой постройки периода 42-43й года, так как его планировка схожа с теми штабными бункерами что я могу найти, частности в Кёненсберге "Бункер Ляша" (план прилагается).
    После войны этот бункер использовался как склад хранения плакатов и технической литературы.
    немецкая аэрофотосъемка за апрель и сентябрь 43го года, где видно(апрельские съемки) как строился он - так как по теням видно что там котлован. на сентябрьских снимках судя с перевода
    (3. административное здание взорвано (здание управление полетов)
    земляное жилье админ-здания не взорваны)
    Мне интересно это типовое здание - или индивидуальной постройки? И каковы были варианты его использования?
    С ув Александр
     

    Images:

    plan-bunkera-lyasha.jpg
    План бункера.jpg
    Konotop  14-4-43 (1).jpg
    Konotop  6-9-432.jpg
    Ситуаційний план МА 01 - копия.jpg
    IMG_20170926_114404.jpg
    Leibstandarte, Airborne, maaaaster та 2 іншим подобається це.
  2. Цікаві лоти

    1. Швейцарія. Сумка в гарному стані без нюансів. Тавро на фото. На ремені прягу закріплено проволочкою,...
      1250 грн.
    2. Контейнер для аварийного питания десантников и пилотов Люфтваффе. Чрезвычайно редкая находка! Этот м...
      8000 грн.
    3. Котелок Wehrmacht. "C&CW44". ***** ***** В родном окрасе "apfel-grün". Один...
      5000 грн.
    4. Газбак короткий.Состояние хорошее.Небитый много родной краски.Ремешки советские.
      1800 грн.
    5. Гетры (гамаши) Вермахт. ------------- Оригинальные гамаши Вермахта. Кожа. Ношены! Фурнитура металл,...
      2000 грн.
  3. leon92

    leon92 Stabsgefreiter

    Рейтинг:
    2
    Відгуків:
    3
    Лоти
      на продажу:
    0
      продані:
    8
    Повідомлення:
    147
    Адреса:
    Форпост Гетьманщини
    фото внутри
     

    Images:

    IMG_20170926_112221.jpg
    IMG_20170926_112303.jpg
    IMG_20170926_112313.jpg
    IMG_20170926_112436.jpg
    IMG_20170926_112531.jpg
    IMG_20170926_113030.jpg
    IMG_20170926_113041.jpg
    IMG_20170926_113334.jpg
    IMG_20170926_114441.jpg
    IMG_20170926_114342.jpg
    maaaaster, ред29 та grek68 подобається це.
  4. leon92

    leon92 Stabsgefreiter

    Рейтинг:
    2
    Відгуків:
    3
    Лоти
      на продажу:
    0
      продані:
    8
    Повідомлення:
    147
    Адреса:
    Форпост Гетьманщини
    еще фото
     

    Images:

    IMG_20170926_113634.jpg
    IMG_20170926_113823.jpg
    IMG_20170926_113840.jpg
    IMG_20170926_113948.jpg
    IMG_20170926_114019.jpg
    IMG_20170926_114040.jpg
    IMG_20170926_114209.jpg
    IMG_20170926_114217.jpg
    IMG_20170926_114528.jpg
    maaaaster, ред29, grek68 та ще 1-му подобається це.
  5. leon92

    leon92 Stabsgefreiter

    Рейтинг:
    2
    Відгуків:
    3
    Лоти
      на продажу:
    0
      продані:
    8
    Повідомлення:
    147
    Адреса:
    Форпост Гетьманщини
    kobra1483 та maaaaster подобається це.